Cabinet dentaire disponible
- Paris 8 (75)
- Omnipratique
- 🟢 Très attractif
- 🚘 Accès facile
- 🦷 Équipe solide
- 🔧 Équipement de pointe
- 🤝 Accompagnement long
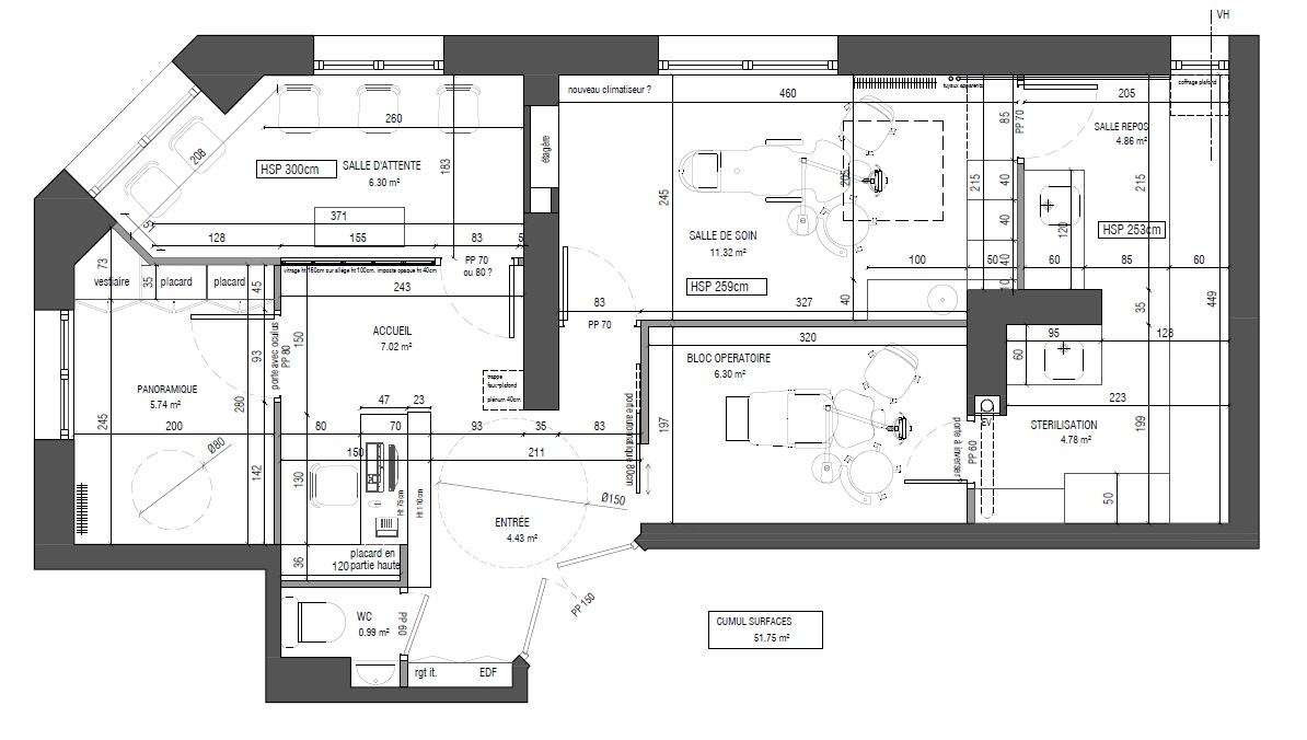
Sydel vous propose un cabinet à Paris 8ᵉ. Installé dans un environnement urbain dynamique et très recherché, ce cabinet récent bénéficie d’une excellente visibilité et d’une patientèle qualitative. Situé au 1er étage d’un immeuble, il offre une surface de 52 m² parfaitement optimisée pour un exercice moderne et efficace. Une opportunité clé-en-main pour un praticien souhaitant s’installer rapidement.
Plateau technique
Deux fauteuils opérationnels
Bloc opératoire dédié, salle de stérilisation et laboratoire
Salle d’attente, accueil
Panoramique et scanner (2020)
Logiciel LogosW
Cabinet conforme ERP (dérogation PMR)
Activité et potentiel
Chiffre d’affaires : 726 000 € sur 4 jours/semaine
Agenda bloqué sur deux semaines
Environ 15 nouveaux patients par mois
Orientation chirurgie possible avec organisation adaptée
Équipe et organisation
1 collaborateur
1 secrétaire en poste, souhaitant rester
Organisation fluide, cabinet réactif et bien structuré
Conditions de cession
Fonds libéral à céder : matériel + patientèle
Locaux en location – loyer mensuel : 3 300 €
Deux conventionnements inclus, permettant d’accueillir un collaborateur
Accompagnement possible jusqu’en décembre 2026, avec présentation de la patientèle
“Ce cabinet a été pensé pour un exercice efficace et bien organisé, et l’activité y est aujourd’hui solide. Je souhaite le céder tel qu’il fonctionne afin qu’un autre praticien puisse s’y installer directement.”
SYDEL SARL au capital minimum de 812 000€, RCS Paris : 788 531 432 00037, Code APE/NAF : 6619 B, N° TVA : FR18788531432
Enregistré sur le registre unique des intermédiaires en assurance, banque et finance (www.orias.fr) sous le n°120 69 007 en qualité de : Conseiller en investissements financiers adhérent à L’ANACOFI-CIF association agréée par l’Autorité des Marchés Financiers, Courtier en opération d’assurance dans la catégorie « b », Courtier en opérations de banque et services de paiement, Activité de démarchage bancaire et financier, et Agent immobilier, Carte de Transaction Immobilière n° CPI 7501 2018 000 038 570 délivrée par la CCI – La société ne peut recevoir aucun fonds, effets ou valeur, Responsabilité Civile Professionnelle et Garanties Financières souscrites auprès de : AIG EUROPE LIMITED, Siège social Tours CB21-16, n°2.401.395/OC 100 000 394.
©2025. Sydel Office










